字某会、俸某能、周某灵、俸某蕊户私宅建设设计方案
批前公示
根据《中华人民共和国城乡规划法》《云南省城乡规划条例》和《临沧市城乡规划公开公示实施办法》,现将临翔区青华社区海乃安置区字某会、俸某能、周某灵、俸某蕊户《私宅建设设计方案》内容进行批前公示。如有异议,欢
迎提出意见建议。
项目名称 | 字某会、俸某能、周某灵、俸某蕊户私宅建设 |
类型 | 批前公示 |
公示类别 | 建筑设计方案 |
建设单位 | 字某会、俸某能、周某灵、俸某蕊户 |
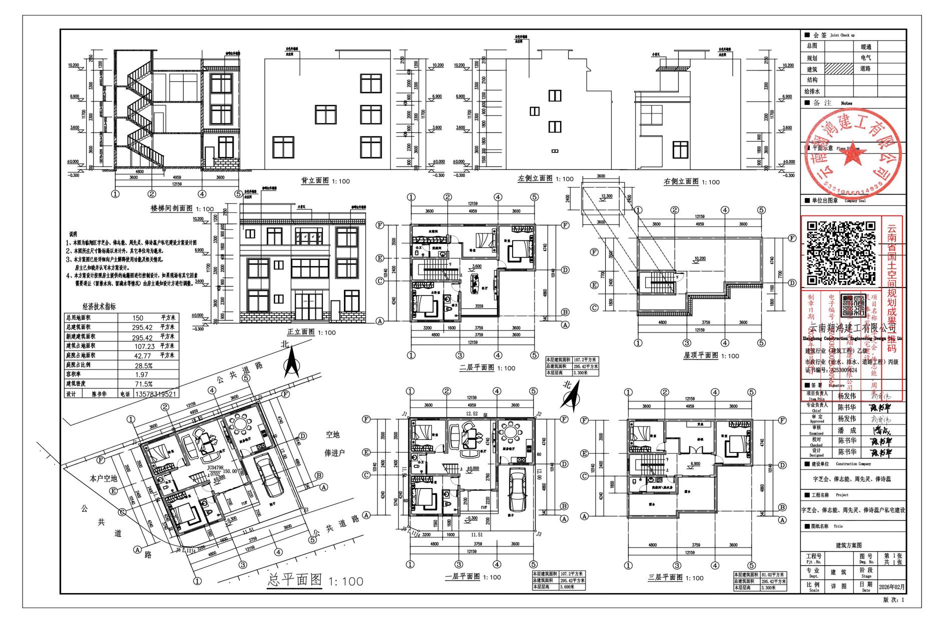
用地位置 | 位于海乃村上段,西环路东面,滇西生物科技园区南面 |
主要经济技术指标 | 用地面积:150㎡,新建建筑面积:295.42㎡,建筑占地面积107.23㎡,建筑密度71.50%,容积率1.97,庭院占比28.50%,建筑层数为地上1层至地上局部3层 |
公示期限 | 7个工作日(2026年3月6日至2026年3月16日) |
联系电话 | 0883-2133529 |
联系邮箱 | Lxzrzycxgh@163.com |
说明 | 1.书面反馈(申请)意见发表时间或邮戳日不应超过公示期的最后一天24:00前,逾期视为无效意见。2.书面意见应注明真实联系人姓名、联系方式。3.信件寄往“临沧市临翔区迎宾路113号临沧市临翔区自然资源局(请注明“规划公示”字样)。 |
公示网址 | https://www.ynlx.gov.cn/zfxxgk_lxq_zrzyj/zrzyxx.html |
附件 | 字某会、俸某能、周某灵、俸某蕊户私宅建设设计方案(图纸为公示稿,以最终审核图纸为准) |
