临沧工业园区综合配送产业园区建设项目修建性详细规划批前公示
项目名称 | 临沧工业园区综合配送产业园区建设项目修建性详细规划 |
类型 | 批前公示 |
公示类别 | 建设工程规划许可证 |
建设单位 | 临沧陆港智慧物流园发展有限公司 |
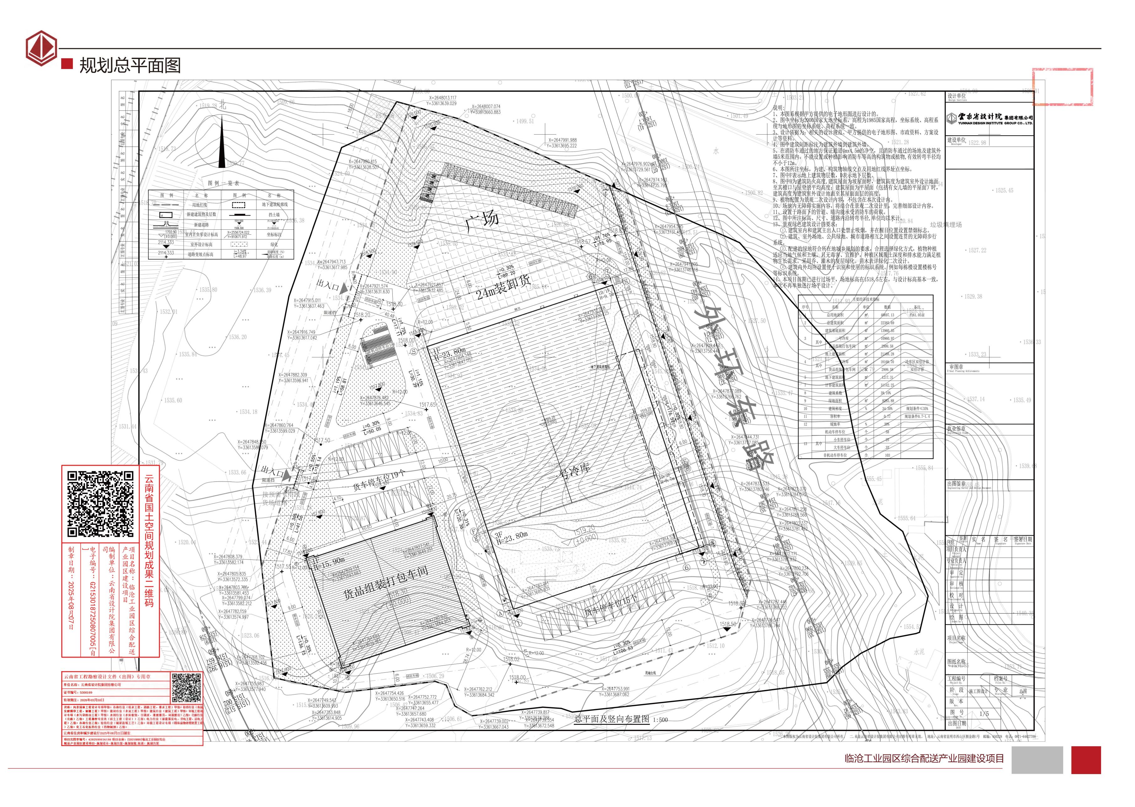
用地位置 | 位于临翔区忙畔街道青华社区文伟火车站片区(东片区) |
主要经济技术指标 | 总建筑面积22385.59平方米(地上建筑面积21168.28平方米,地下建筑面积1217.31平方米),其中一号冷库19386.01平方米,货品组装打包车间2999.58平方米。总计容面积31142.25平方米,其中一号冷库25143.09平方米,货品组装打包车间5999.16平方米。总建筑基底面积13960.55平方米,总绿地面积8285.88平方米。容积率0.77,建筑密度34.30%,建筑系数39.10%,绿地率20%。机动车停车位58个,非机动车停车位103个。建筑层数为地下1层至地上局部4层。 |
公示期限 | 7个工作日(2026年1月28日 至2026年2月5日) |
联系电话 | 0883-2153881 |
联系邮箱 | lxqgtkjghbgs@163.com |
说明 | 1.书面反馈(申请)意见发表时间或邮戳日不应超过公示期的最后一天24:00前,逾期视为无效意见。2.书面意见应注明真实联系人姓名、联系方式。3.信件寄往:临沧市临翔区迎宾路113号临沧市临翔区自然资源局(请注明“规划公示”字样)。 |
公示网址 | https://www.ynlx.gov.cn/zfxxgk_lxq_zrzyj/zrzyxx.html |
附件 | 设计方案公示稿(附项目区位图、总平面图、鸟瞰图) |







