政府信息公开
(区自然资源局)
李某彩、刘某文户私宅建设项目批后公开
日期:2025-08-25 09:54 来源:区自然资源局 浏览:312次 字体:【

李某彩、刘某文户私宅建设项目批后公开

项目名称

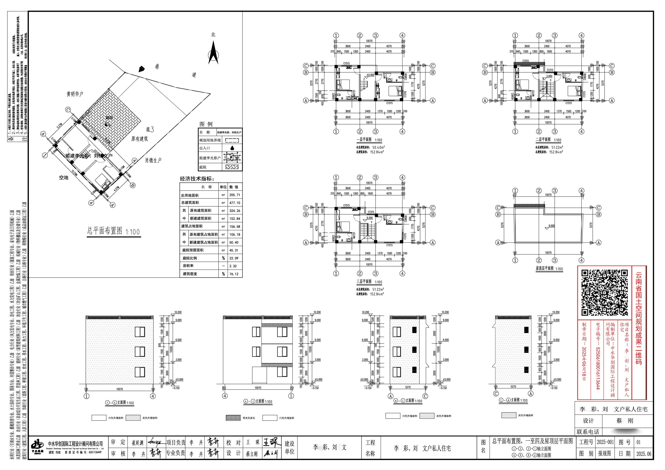
李某彩、刘某文户私宅建设项目

类型

批后公开

公示类别

建设工程规划许可证

发证编号

建字第临翔区202500057号

建设单位

李某彩、刘某文户

用地位置

位于南汀河滨河西路西,柏木桥巷(南北小河)北面,万龙小区南侧

主要经济技术指标

新建建筑面积:152.84平方米,层数为地上1层至地上3层

公示期限

1年(2025年8月25日至2026年8月24日)

公示网址

https://www.ynlx.gov.cn/zfxxgk_lxq_zrzyj/zrzyxx.html

附件

李某彩、刘某文户私宅建设项目设计方案及工程规划许可证扫描件

扫一扫在手机打开当前页面
分享: