根据《中华人民共和国城乡规划法》、《云南省城乡规划条例》和《临沧市城乡规划公开公示实施办法》,现对临沧茶马古镇建设项目F1区19栋101、102商业建筑工程竣工规划核实进行批后公布
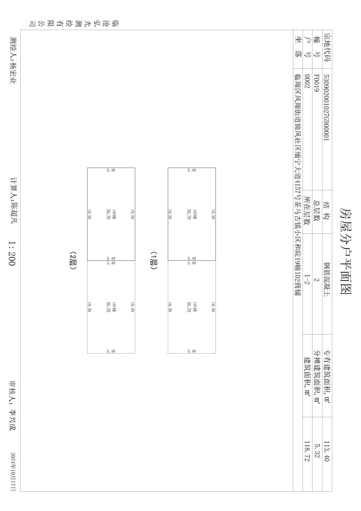
项目名称 | 临沧茶马古镇建设项目F1区19栋101、102商业建筑 |
建设单位 | 临沧鸿曦茶马古镇投资开发有限公司 |
用地位置 | 位于临翔区主城区南部,缅宁大道东侧,环城东路西侧 |
建设规模 | 建筑面积:F1区19栋101商业建筑118.72㎡、F1区19栋102商业建筑118.72㎡(符合规划方案) |
核实意见书证号 | |
核发日期 | 2026年1月7日 |
公布期限 | 1年(2026年1月8日至 2027年1月7日) |
公布网址 | https://www.ynlx.gov.cn/zfxxgk_lxq_zrzyj/zrzyxx.html |
联系方式 | 联系电话:0883-2133529,电子邮箱:Lxzrzycxgh@163.com |
联系地址 | 临沧市临翔区迎宾路113号临沧市临翔区自然资源局城乡规划中心 |
附件 | 临沧茶马古镇建设项目F1区19栋101、102商业建筑房屋分户平面图 |
公布机关:临沧市临翔区自然资源局

