政府信息公开
(区自然资源局)
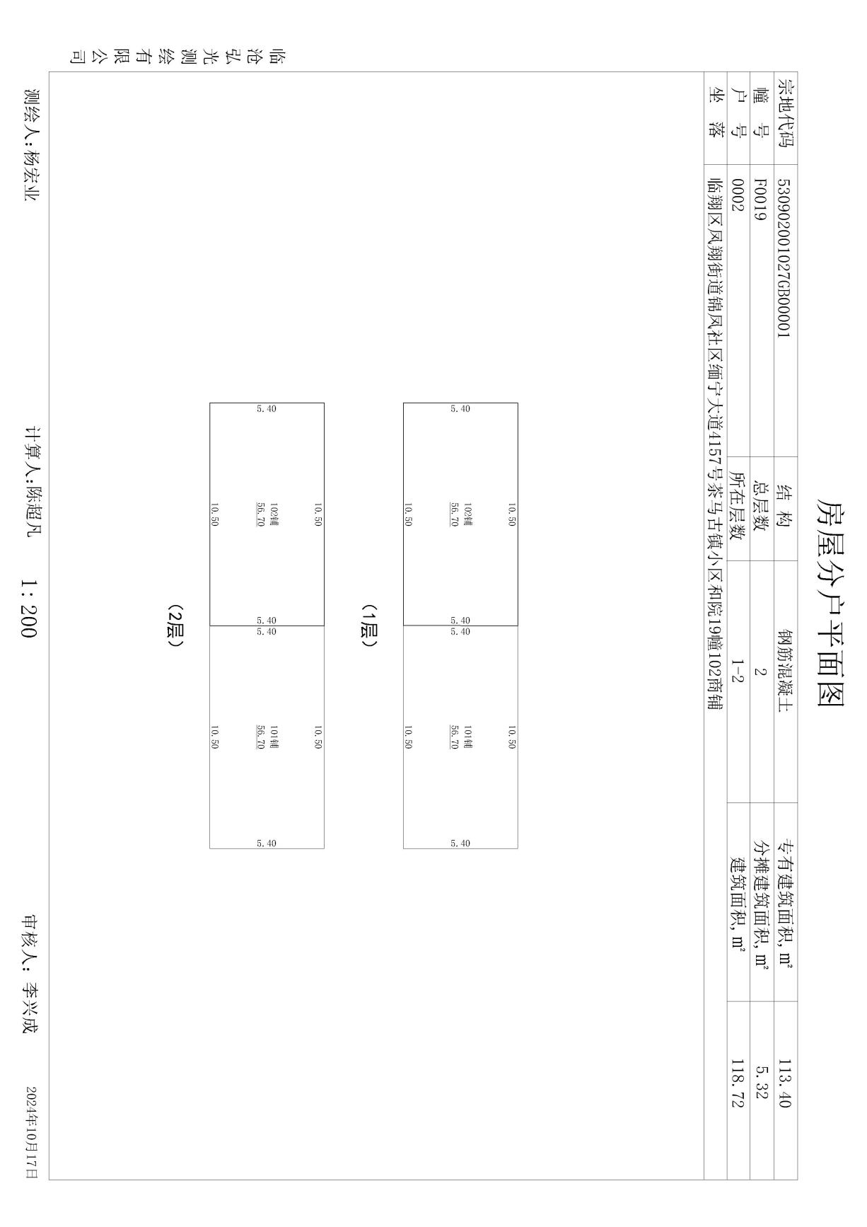
临沧茶马古镇建设项目F1区19栋101、102商业建筑工程竣工规划核实意见批前公示
日期:2025-12-23 11:11 来源:区自然资源局 浏览:780次 字体:【

根据《中华人民共和国城乡规划法》、《云南省城乡规划条例》和《临沧市城乡规划公开公示实施办法》,现将临沧茶马古镇建设项目F1区19栋101、102商业建筑工程竣工规划核实意见进行批前公示

项目名称

临沧茶马古镇建设项目F1区19栋101、102商业建筑

建设单位

临沧鸿曦茶马古镇投资开发有限公司

用地位置

位于临翔区主城区南部,缅宁大道东侧,环城东路西侧

用地性质

居住用地、商业服务业设施用地

建设工程规划 许可证号

建字第530900201200609号

申请日期

2025年12月18日

规划实施情况

建筑面积:F1区19栋101商业建筑118.72㎡、F1区19栋102商业建筑118.72㎡(符合规划方案)

公示期限

7个工作日(2025年12月23日至2025年12月31日)

公示网址

https://www.ynlx.gov.cn/zfxxgk_lxq_zrzyj/zrzyxx.html

公示地点

临沧茶马古镇建设项目F1区19栋商业建筑门口

意见反馈和联系方式:对以上公示项目如有异议,请在公示期限内以书面形式将意见和建议反馈至临沧市临翔区迎宾路113号临沧市临翔区自然资源局(电话:0883-2133529,邮箱: Lxzrzycxgh@163.com)。 逾期或无异议,我局将依法出具临沧茶马古镇建设项目F1区19栋101、102商业建筑规划核实意见。

扫一扫在手机打开当前页面
分享: