临翔区自然资源局批前公示
根据《中华人民共和国城乡规划法》、《云南省城乡规划条例》和《临沧市城乡规划公开公示实施办法》,现将临翔区南信桥社区临景村安置地普某春、普某玉、罗某芳户《建设工程规划许可证》进行批前公示。如有异议,欢迎提出意见建议。
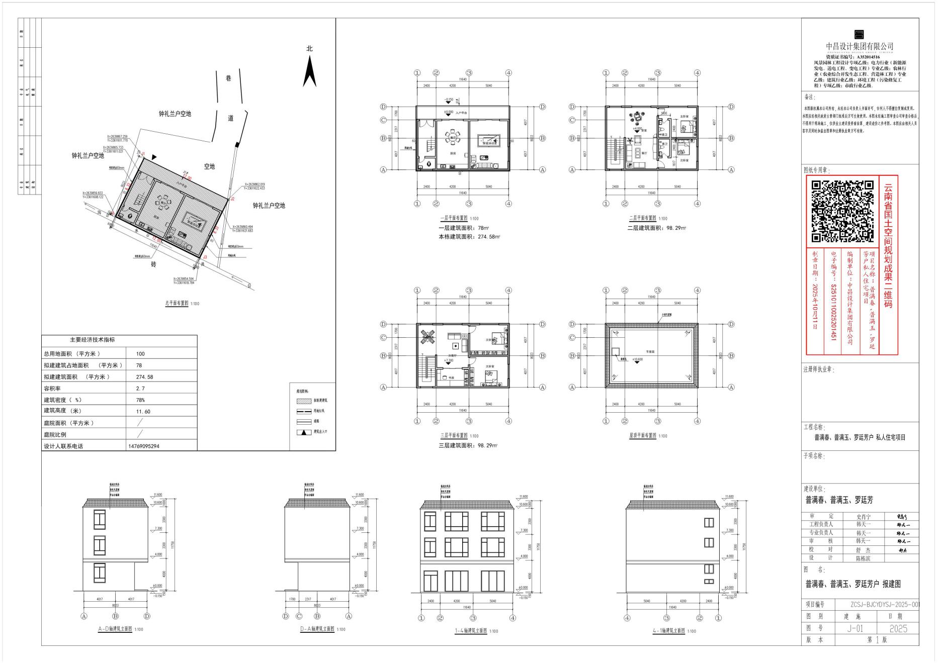
项目名称 | 普某春、普某玉、罗某芳户私宅建设 |
类型 | 批前公示 |
公示类别 | 建设工程规划许可证 |
建设单位 | 普某春、普某玉、罗某芳 |
设计单位 | 中昌设计集团有限公司 |
用地位置 | 位于临景村南部,机场高速公路匝道东侧,临清高速公路西面 |
拟建设规模 | 建筑面积:274.58平方米,建筑层数为地上1层至地上3层 |
公示期限 | 7个工作日(2025年10月27日至2025年11月4日) |
联系电话 | 0883-2133529(城乡规划中心) |
联系邮箱 | Lxzrzycxgh@163.com |
说明 | 1.书面反馈(申请)意见发表时间或邮戳日不应超过公示期的最后一天24:00前,逾期视为无效意见。2.书面意见应注明真实联系人姓名、联系方式。3.信件寄往“临沧市临翔区迎宾路113号临沧市临翔区自然资源局(请注明“规划公示”字样)。 |
公示网址 | https://www.ynlx.gov.cn/zfxxgk_lxq_zrzyj/zrzyxx.html |
附件 | 普某春、普某玉、罗某芳户私宅建设方案(图纸为公示稿,以最终审核图纸为准) |
