临翔区自然资源局批前公示
根据《中华人民共和国城乡规划法》、《云南省城乡规划条例》和《临沧市城乡规划公开公示实施办法》,现将文华社区忙东组陈某英户《建设工程规划许可证》进行批前公示。如有异议,欢迎提出意见建议。
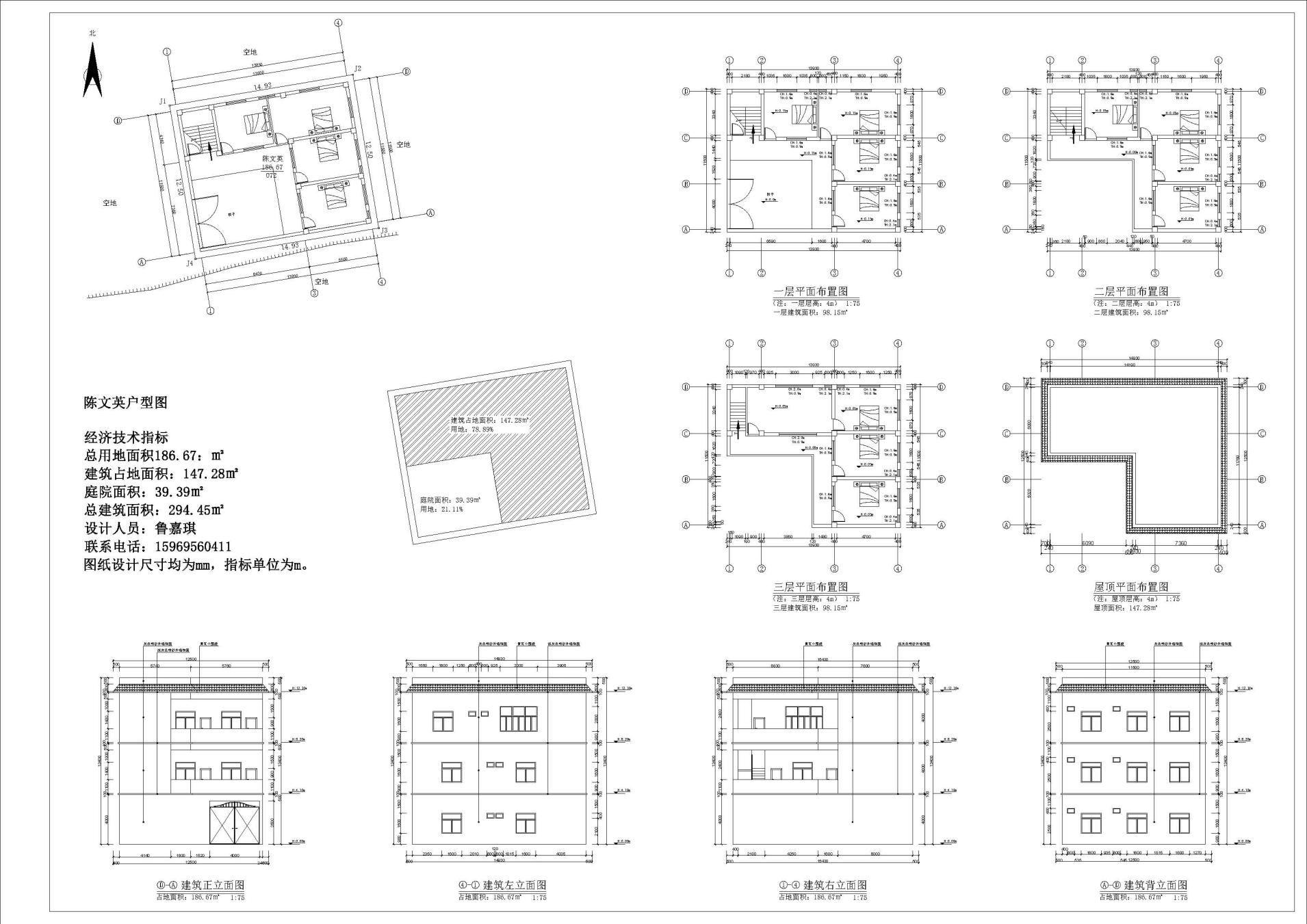
项目名称 | 陈某英户个人建房建设项目 |
类型 | 批前公示 |
公示类别 | 建设工程规划许可证 |
建设单位 | 陈某英 |
用地位置 | 东环线(茶马古镇东面,临清高速公路西面 |
拟建设规模 | 294平方米 |
公示期限 | 7个工作日(2021年1月26日 至2021年2月2日) |
联系电话 | 0883-2153881(国土空间和城乡规划股) |
联系邮箱 | Lxzrzycxgh@163.com |
说明 | 1.书面反馈(申请)意见发表时间或邮戳日不应超过公示期的最后一天24:00前,逾期视为无效意见。2.书面意见应注明真实联系人姓名、联系方式。3.信件寄往“临沧市临翔区迎宾路113号临沧市临翔区自然资源局(请注明“规划公示”字样)。 |
公示网址 | http://www.ynlx.gov.cn/lxqrmzf/lxqrmzf/zdlygk74/gtzyxxgkzl/cxghgkgs/pqgs/index.html |
附件 | 陈某英户个人建房建设方案 (图纸为公示稿,以最终审核图纸为准) |

