政府信息公开
郭某莲、羊某户(地块二)私宅建设设计方案批前公示
日期:2026-03-20 09:25 来源:区自然资源局 浏览:451次 字体:【

郭某莲、羊某户(地块二)私宅建设变更设计方案批前公示

根据《中华人民共和国城乡规划法》《云南省城乡规划条例》和《临沧市城乡规划公开公示实施办法》,现将临翔区青华社区四组郭某莲、羊某户(地块二)《私宅建设变更设计方案》内容进行批前公示。如有异议,欢迎提出意见建议。

项目名称

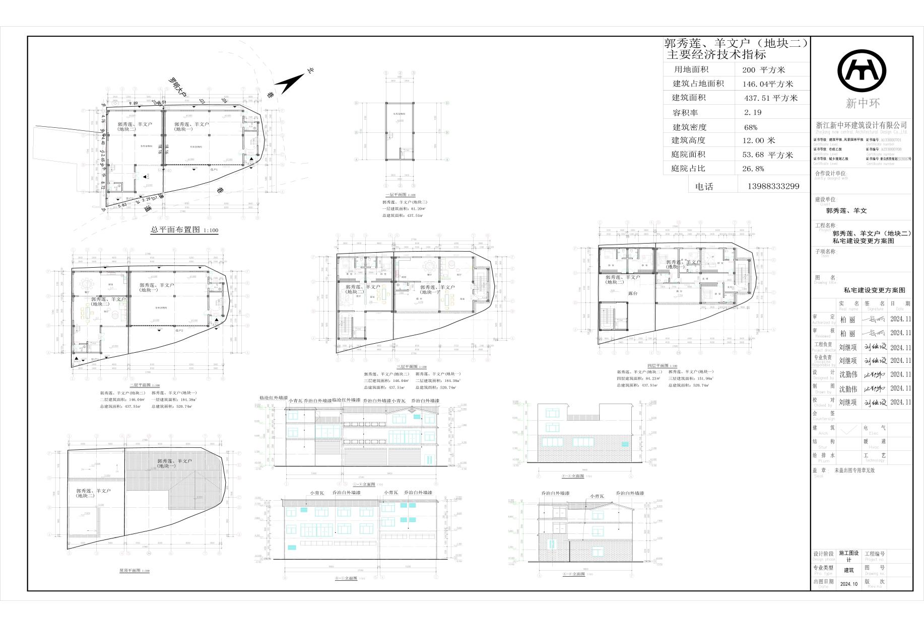
郭某莲、羊某户地块二私宅建设

类型

批前公示

公示类别

建筑设计方案

建设单位

郭某莲、羊某

用地位置

位于西环线东面,在建临翔区三中东北面,南汀河滨河西路西面

主要经济技术指标

用地面积:200㎡,新建建筑面积:437.51㎡,建筑占地面积146.04㎡,建筑密度68%,容积率2.19,庭院占比26.80%,建筑层数:地上1层至地上局部4层

公示期限

7个工作日(2026年3月20日至2026年3月30日)

联系电话

0883-2153881

联系邮箱

lxqgtkjghbgs@163.com

说明

1.书面反馈(申请)意见发表时间或邮戳日不应超过公示期的最后一天24:00前,逾期视为无效意见。2.书面意见应注明真实联系人姓名、联系方式。3.信件寄往“临沧市临翔区迎宾路113号临沧市临翔区自然资源局(请注明“规划公示”字样)。

公示网址

https://www.ynlx.gov.cn/zfxxgk_lxq_zrzyj/zrzyxx.html

附件

郭某莲、羊某户私宅建设变更设计方案(图纸为公示稿,以最终审核图纸为准)

扫一扫在手机打开当前页面
分享: